Casa Los Úlmos
2025
|
Lago Ranco, Futrono
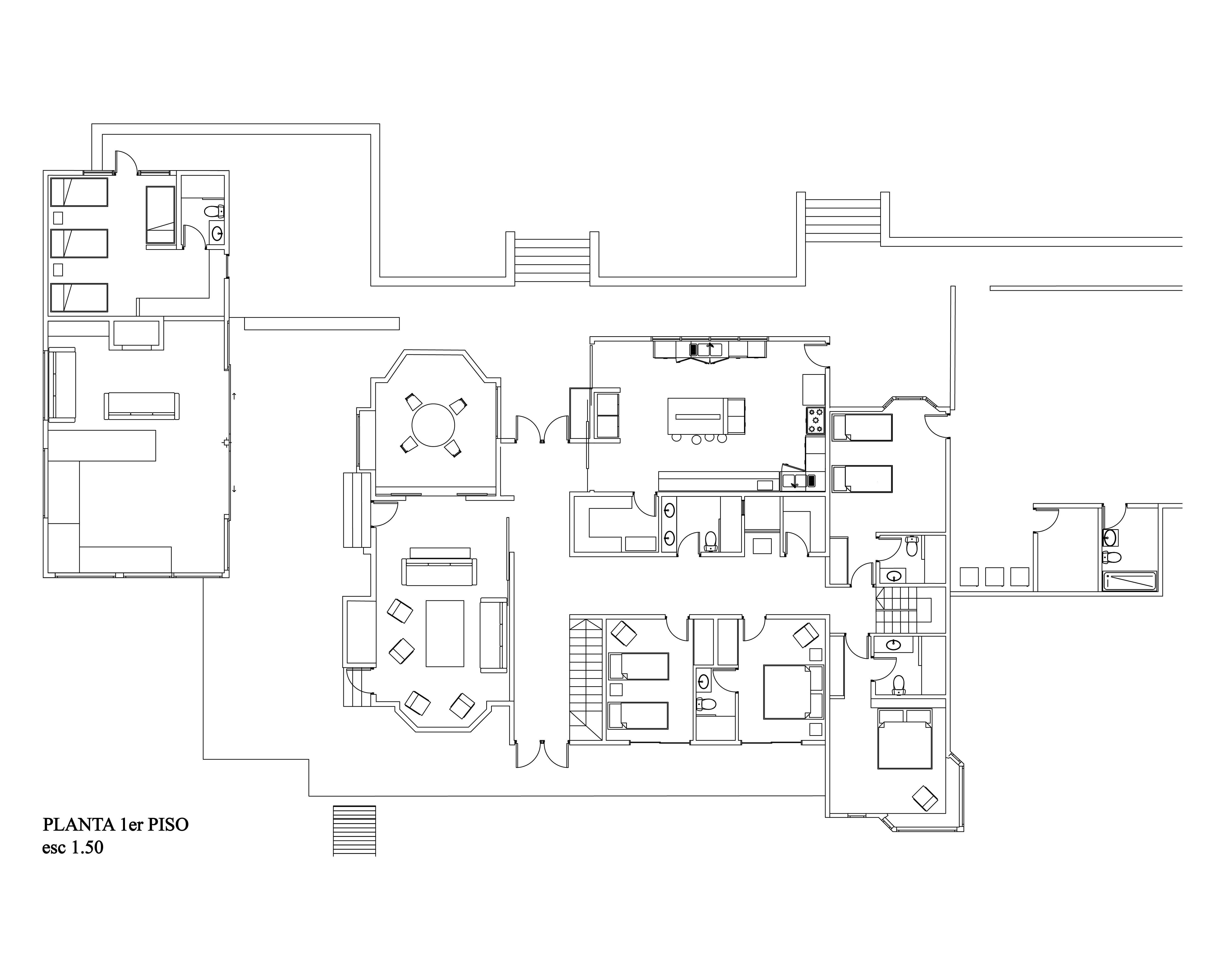
Casa Los Úlmos surge del propósito de reinterpretar el espacio interior de una vivienda en Futrono, maximizando el potencial de cada metro cuadrado. Más que una transformación de su volumetría exterior, el proyecto se define por una serie de operaciones precisas destinadas a reorganizar el programa y actualizar la forma en que se habita la casa. La propuesta busca la máxima eficiencia espacial, ajustando las proporciones de cada recinto para garantizar un estándar de vida contemporáneo, fluido y adaptado a las necesidades actuales del cliente.


La estrategia de diseño en el primer nivel se concentró en la reconfiguración del centro neurálgico de la vivienda. Mediante la modificación y reubicación estratégica de tabiquería, se articuló un nuevo núcleo de servicios que agrupa de manera eficiente una despensa y un baño de visitas. Esta operación fue clave para poder expandir la cocina, transformándola en un espacio de carácter contemporáneo y gran funcionalidad. Paralelamente, se ajustó la superficie de las habitaciones de la primera planta con el objetivo de ensanchar el pasillo principal, otorgando una escala mucho más holgada y cómoda a las circulaciones diarias.



El cuidado por la fluidez espacial se extiende hacia el segundo piso, donde la intervención se centró en rediseñar la llegada de la escalera y el hall de distribución. Esta mejora en el recorrido vertical no solo ordenó el acceso a las piezas, sino que fue fundamental para resolver la planta del nivel superior. Gracias a este ajuste, el dormitorio principal logró optimizar su superficie y abrirse visualmente hacia el exterior, permitiendo que la vista directa al jardín se convierta en el telón de fondo para el descanso.



2025
|
Lago Ranco, Futrono
Casa Los Úlmos
Casa Los Úlmos surge del propósito de reinterpretar el espacio interior de una vivienda en Futrono, maximizando el potencial de cada metro cuadrado. Más que una transformación de su volumetría exterior, el proyecto se define por una serie de operaciones precisas destinadas a reorganizar el programa y actualizar la forma en que se habita la casa. La propuesta busca la máxima eficiencia espacial, ajustando las proporciones de cada recinto para garantizar un estándar de vida contemporáneo, fluido y adaptado a las necesidades actuales del cliente.




La estrategia de diseño en el primer nivel se concentró en la reconfiguración del centro neurálgico de la vivienda. Mediante la modificación y reubicación estratégica de tabiquería, se articuló un nuevo núcleo de servicios que agrupa de manera eficiente una despensa y un baño de visitas. Esta operación fue clave para poder expandir la cocina, transformándola en un espacio de carácter contemporáneo y gran funcionalidad. Paralelamente, se ajustó la superficie de las habitaciones de la primera planta con el objetivo de ensanchar el pasillo principal, otorgando una escala mucho más holgada y cómoda a las circulaciones diarias.




El cuidado por la fluidez espacial se extiende hacia el segundo piso, donde la intervención se centró en rediseñar la llegada de la escalera y el hall de distribución. Esta mejora en el recorrido vertical no solo ordenó el acceso a las piezas, sino que fue fundamental para resolver la planta del nivel superior. Gracias a este ajuste, el dormitorio principal logró optimizar su superficie y abrirse visualmente hacia el exterior, permitiendo que la vista directa al jardín se convierta en el telón de fondo para el descanso.








Casa Los Úlmos
2025
|
Lago Ranco, Futrono
Casa Los Úlmos surge del propósito de reinterpretar el espacio interior de una vivienda en Futrono, maximizando el potencial de cada metro cuadrado. Más que una transformación de su volumetría exterior, el proyecto se define por una serie de operaciones precisas destinadas a reorganizar el programa y actualizar la forma en que se habita la casa. La propuesta busca la máxima eficiencia espacial, ajustando las proporciones de cada recinto para garantizar un estándar de vida contemporáneo, fluido y adaptado a las necesidades actuales del cliente.


La estrategia de diseño en el primer nivel se concentró en la reconfiguración del centro neurálgico de la vivienda. Mediante la modificación y reubicación estratégica de tabiquería, se articuló un nuevo núcleo de servicios que agrupa de manera eficiente una despensa y un baño de visitas. Esta operación fue clave para poder expandir la cocina, transformándola en un espacio de carácter contemporáneo y gran funcionalidad. Paralelamente, se ajustó la superficie de las habitaciones de la primera planta con el objetivo de ensanchar el pasillo principal, otorgando una escala mucho más holgada y cómoda a las circulaciones diarias.




El cuidado por la fluidez espacial se extiende hacia el segundo piso, donde la intervención se centró en rediseñar la llegada de la escalera y el hall de distribución. Esta mejora en el recorrido vertical no solo ordenó el acceso a las piezas, sino que fue fundamental para resolver la planta del nivel superior. Gracias a este ajuste, el dormitorio principal logró optimizar su superficie y abrirse visualmente hacia el exterior, permitiendo que la vista directa al jardín se convierta en el telón de fondo para el descanso.


